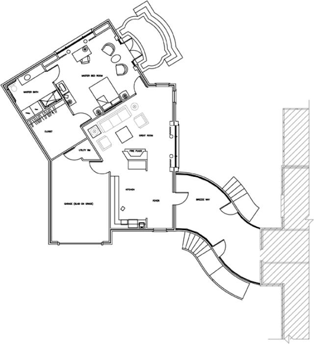
Kusar House

pcooper114

Location:

OPEN PROJECT