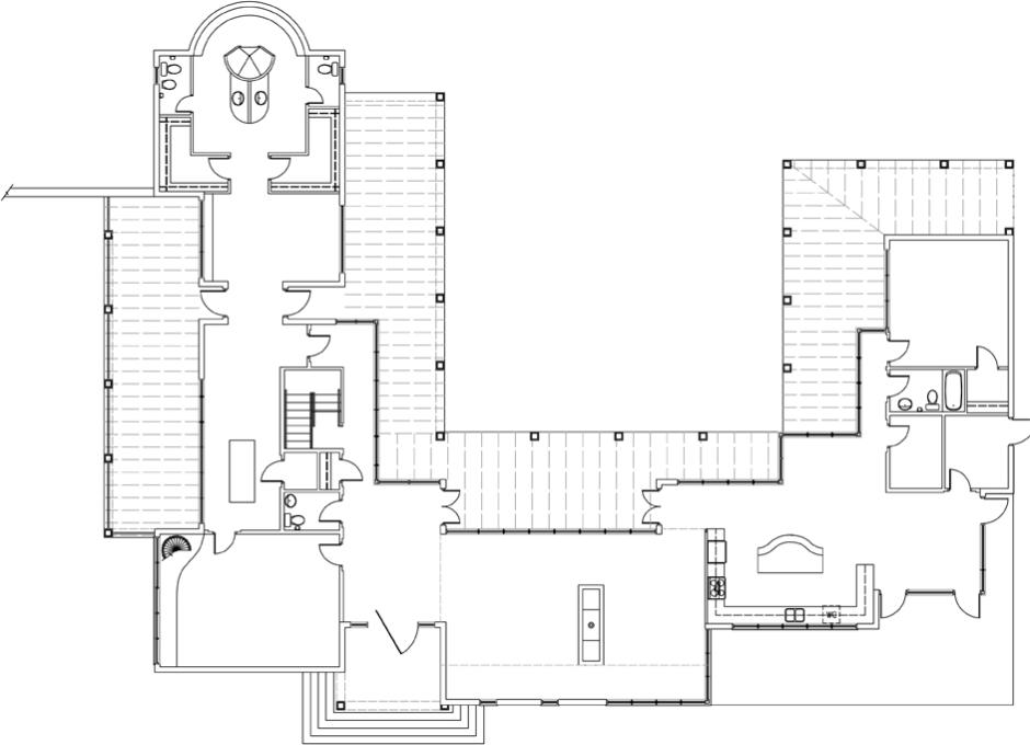
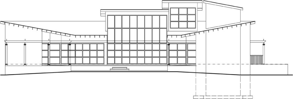
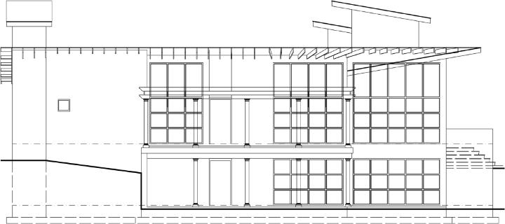
Moore House

Location: Perry, GA

Completion Date: Summer 2007

Building Area: 5,000 sqft