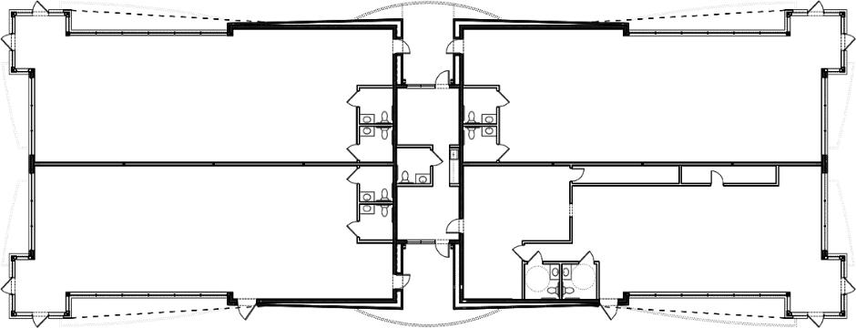
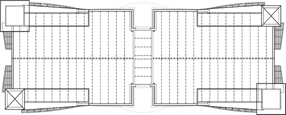
Rose Plaza

pcooper114

Location: Byron, GA

Completion Date: Fall 2008

Building Area:

OPEN PROJECT