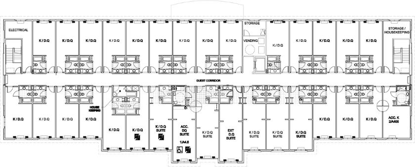
Holiday Inn, Macon

pcooper114

Location: Macon, GA

Completion Date: Summer 2009

Building Area:

OPEN PROJECT